Pierre-Antoine Ledrole
/ BIM Modeleur
Home
Services
Realisations
Contact
Details Realisation
Home
Portfolio
Details Realisation
Informations Projet
Software
: Revit
Client
: FormHighTec
Project date
: 2022
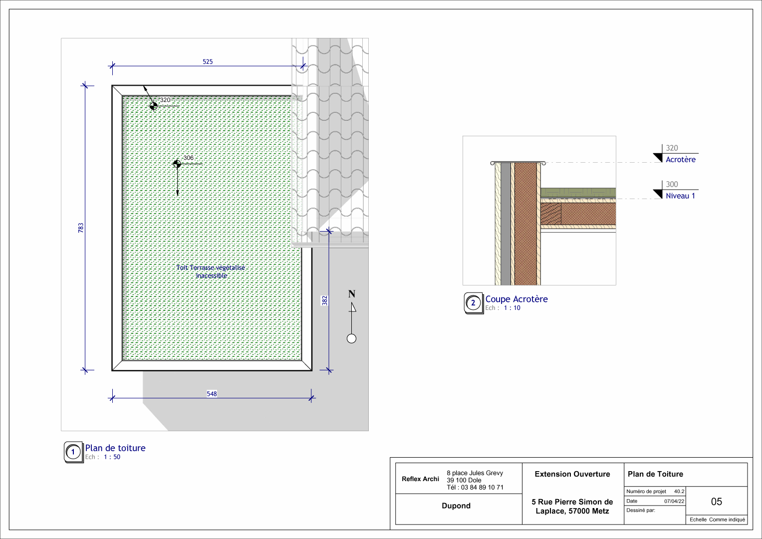
Extension Ouverture
Modélisation à partir de plans 2D et Création d'une extension.